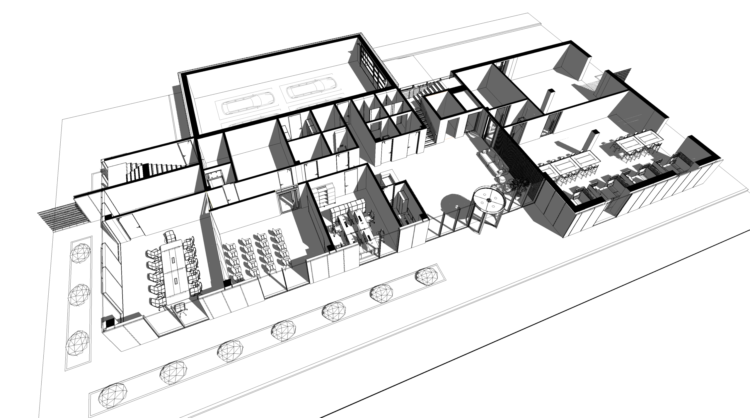
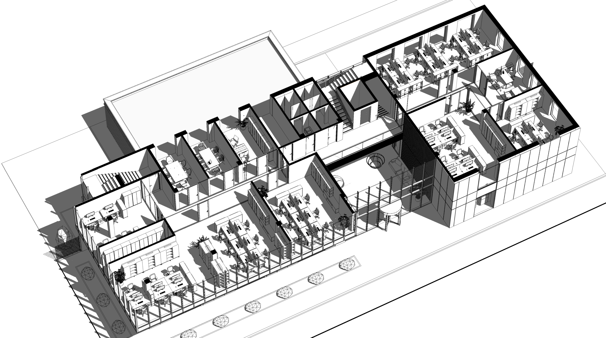
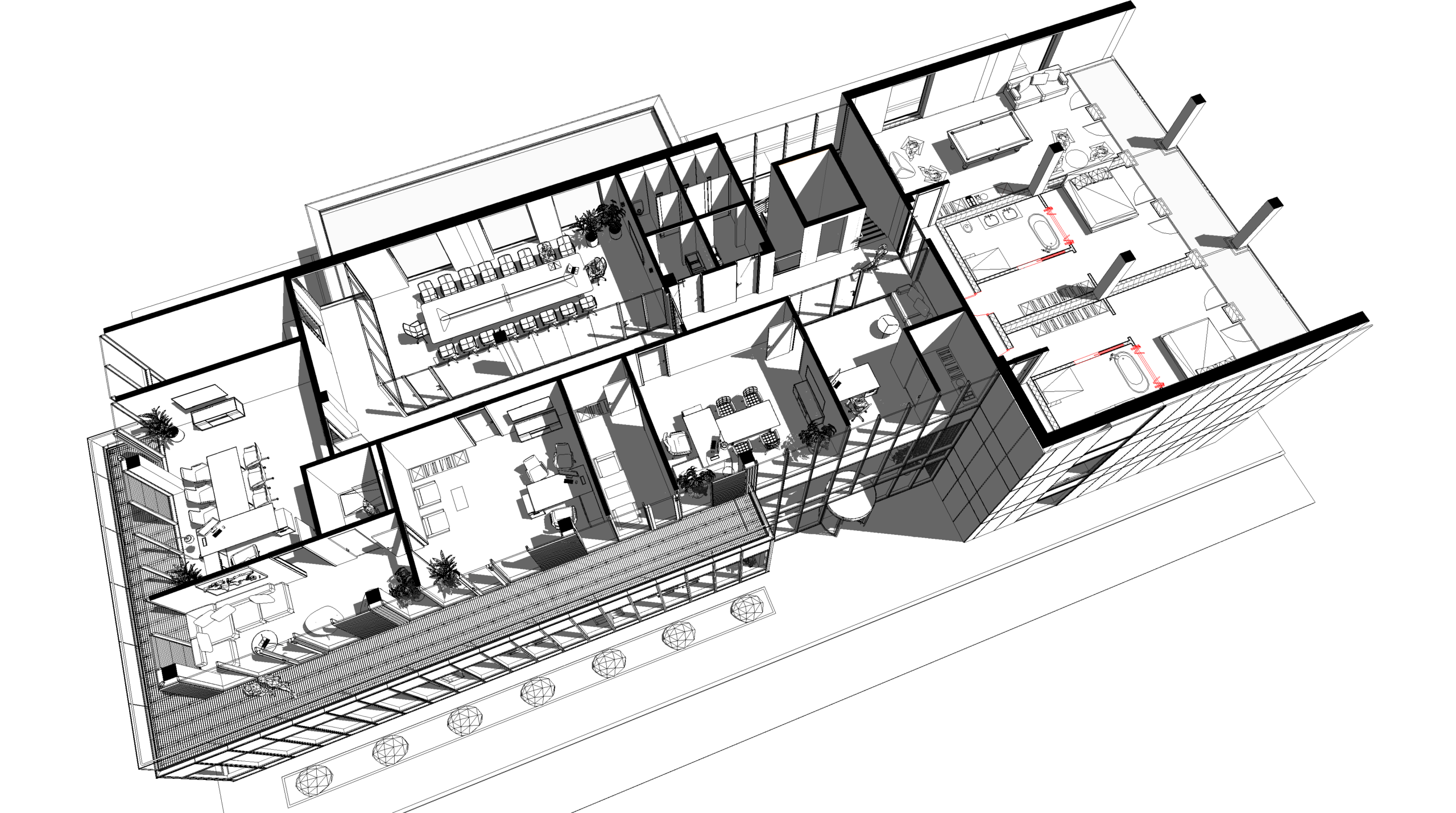
Административно-бытовой корпус на территории ООО "БелЭмса" по адресу: Могилевский район, Полыковичный с/с, 9
Заказчик: ООО “БелЭмса”
Общая площадь здания: 1 494 м2
Класс сложности: К-4
Адрес объекта: Республика Беларусь, г. Могилев
Описание проекта:
Объектом проектирования является производственное здание предназначенное для изготовления и хранение изделий из металлического листа (профнастил, фальцевые панели для фасадов и кровли, конек простой, фронтовое покрытие, оконный отлив, металлопрофиль для ограждений, корпусные изделия из листового металла и т.д.). Проектируемое здание предусматривает в своем составе наличие складских, офисных и вспомогательных помещений.
Выполненные работы:
- Архитектурно-планировочная концепция




